TB 9-6625-2083-35
a. Performance Check
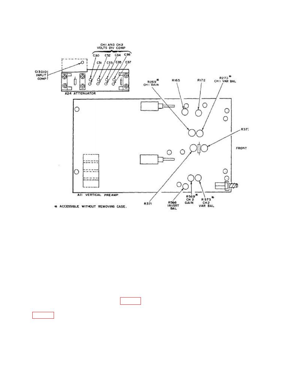
(1) Set CH 1 and CH 2 AC-GND-DC switches to DC.
(2) Connect oscilloscope calibrator SOURCE/MEASURE CHAN 1 to TI CH1 input
and SOURCE/MEASURE CHAN 2 to TI CH2 input through 50Ω feedthrough
terminations.
(3) Set oscilloscope calibrator for a CHAN 2, VOLTAGE mode output of 30 mV and
(4) Rotate oscilloscope calibrator knob located below EDIT FIELD pushbutton for 6
divisions of TI display. If oscilloscope calibrator Err display readout indication is not
within limits specified in first row of table 13, perform b (1) below.
(5) Set VOLTS/DIV and oscilloscope calibrator VOLTAGE to settings listed in
table 13 and at
each setting, rotate oscilloscope calibrator knob located below EDIT FIELD